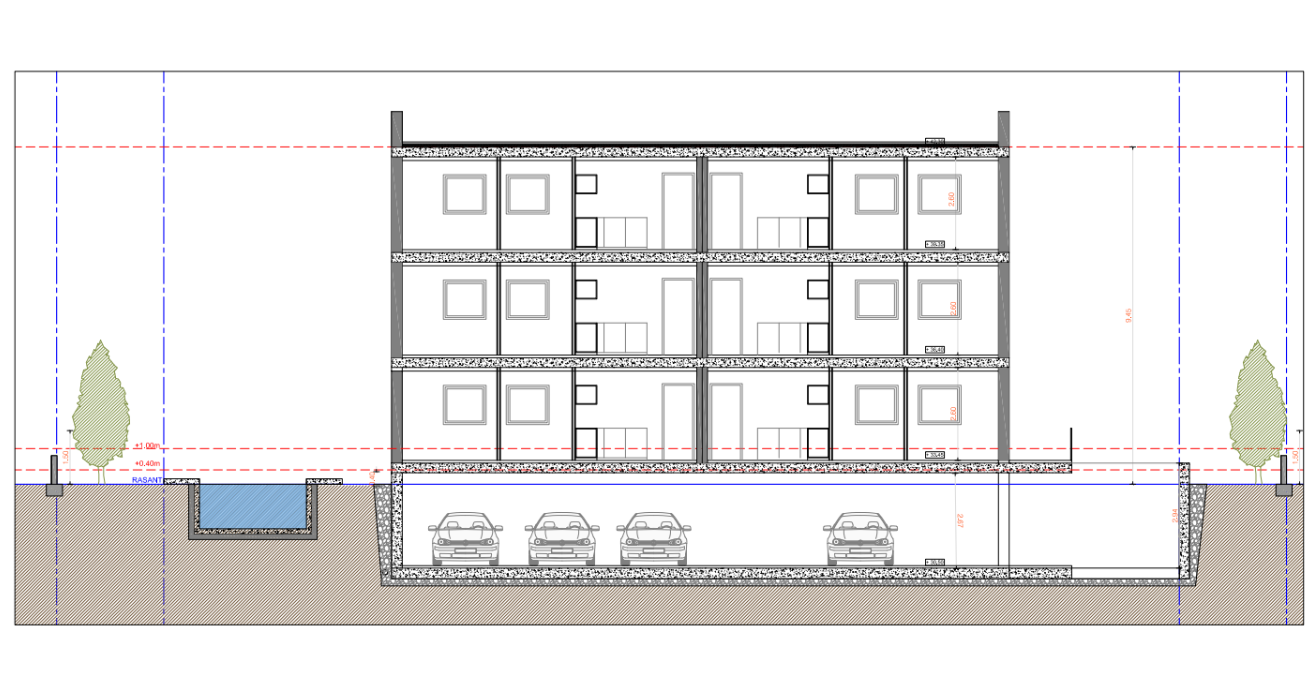
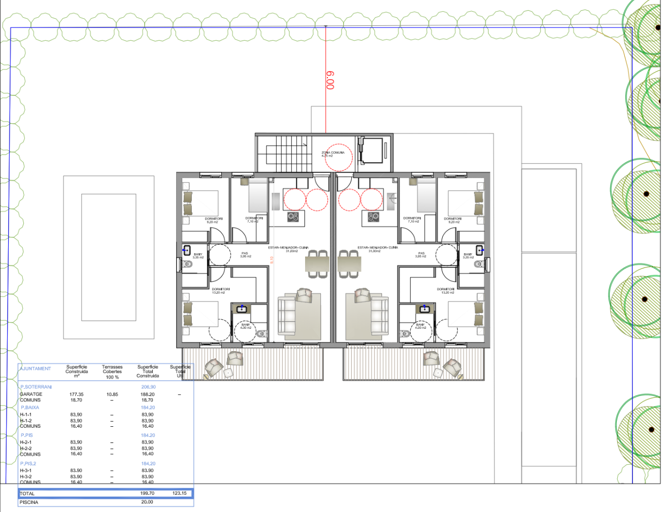
En pleno corazón de Roses, Prime Mas Oliva ofrece solo 6 exclusivas viviendas en un edificio a 4 vientos con jardín, piscina comunitaria y garaje privado.
Diseñadas para familias que buscan luz, espacio y comodidad, todas las viviendas cuentan con 3 habitaciones, 2 baños, cocina abierta con salón y amplias terrazas con vistas a la montaña. Una promoción única en la zona más demandada de Roses, junto a colegios, instalaciones deportivas y naturaleza.














