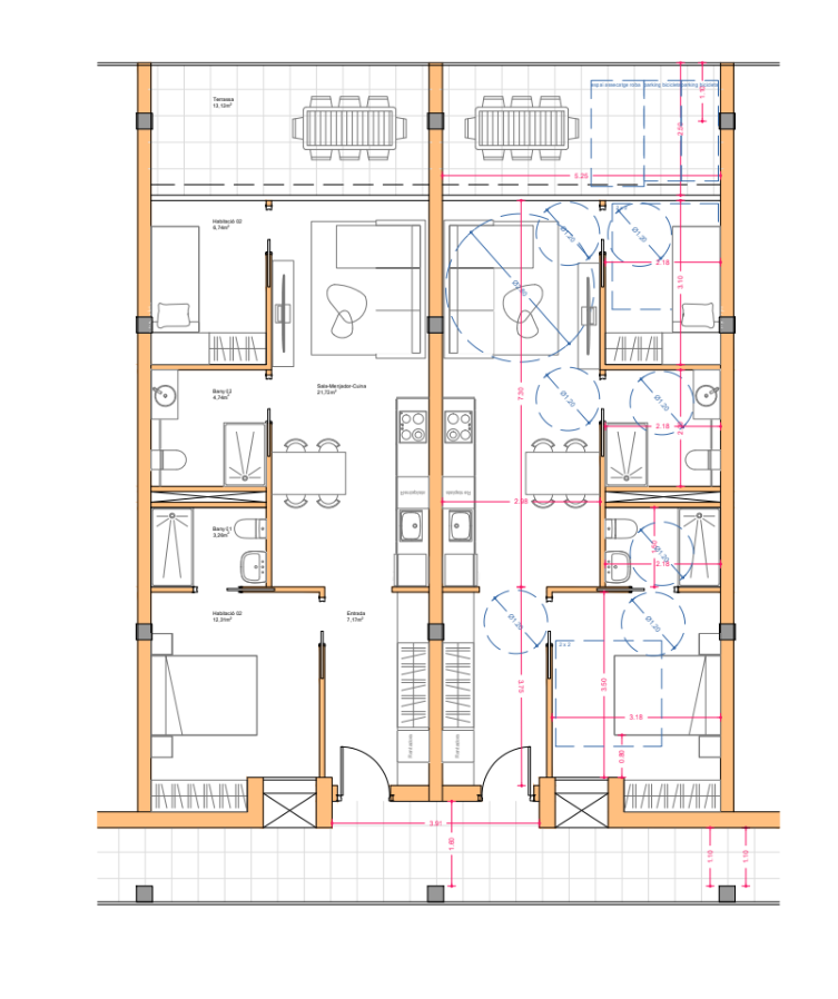
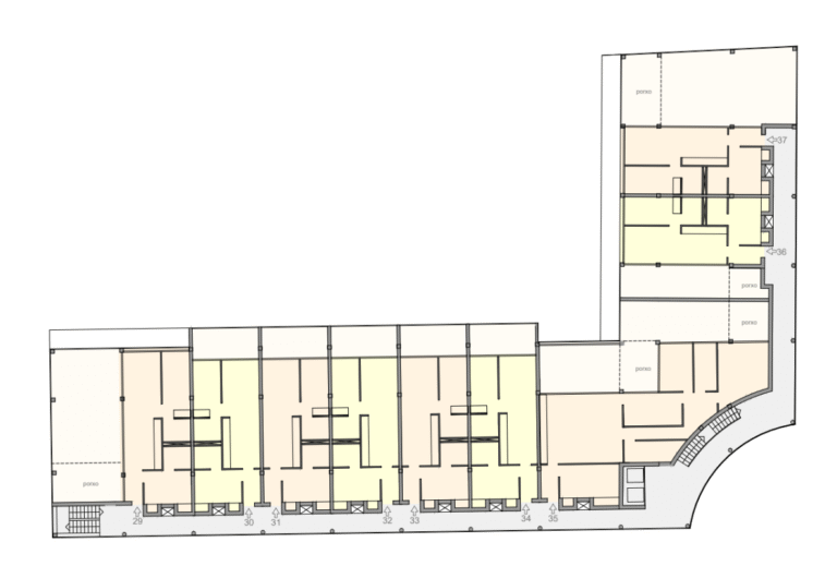
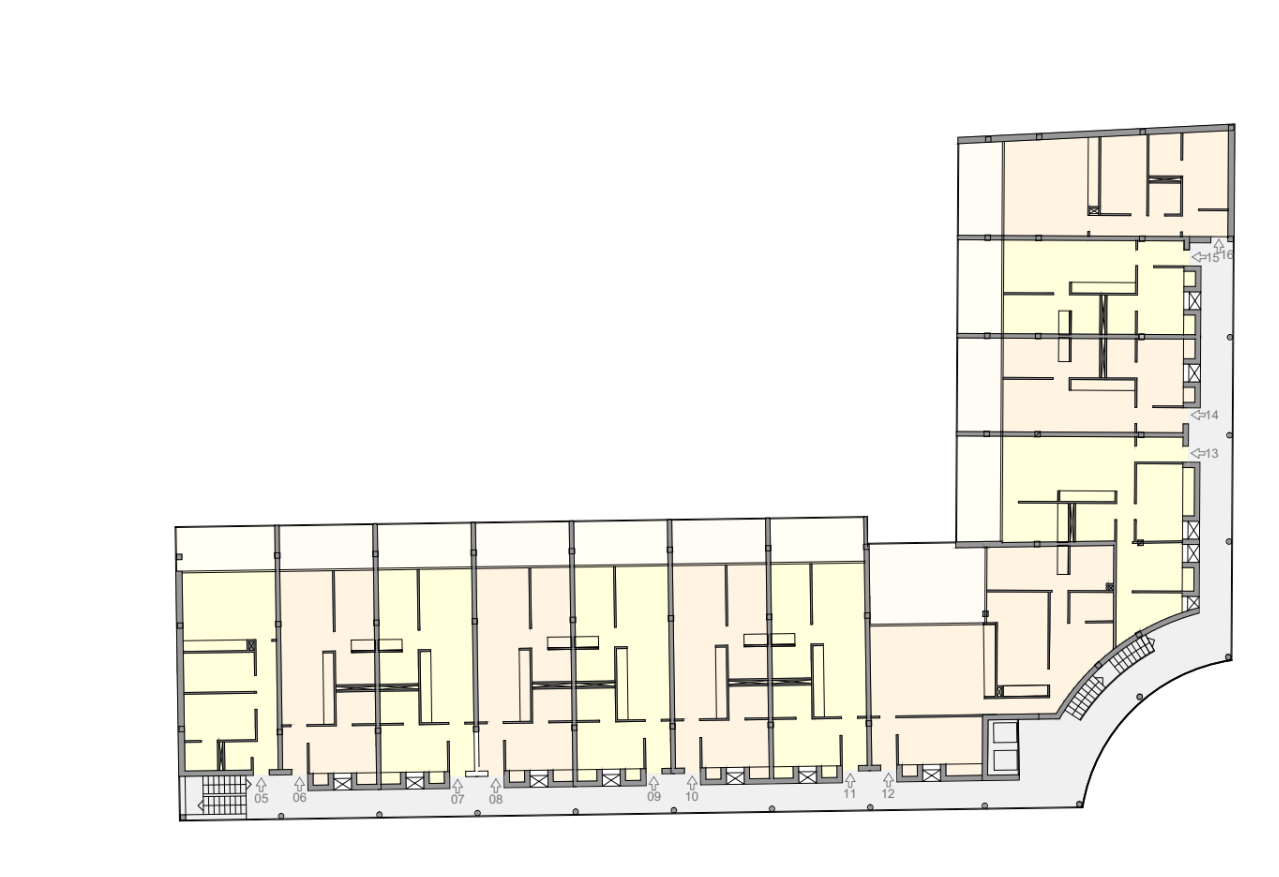
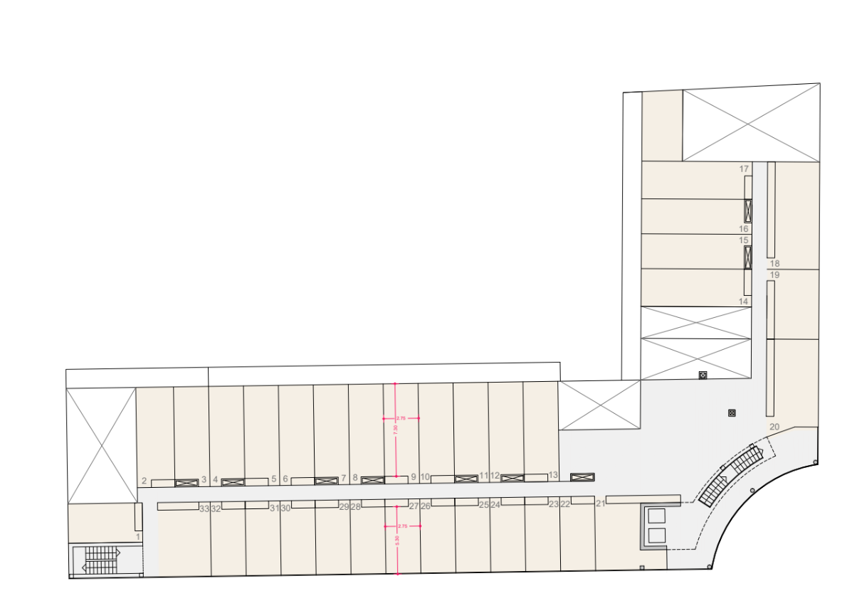
Proyecto en desarrollo para la construcción de un conjunto residencial con 27 viviendas con parking y piscina comunitaria, con posibilidad de ampliación hasta 38 unidades mediante permuta. Ubicado en una de las zonas más turísticas y con mayor proyección de la Costa Brava.

























